Trang thông tin tổng hợp
  • Mới nhất Xem nhiều
  • Hotline: 1100 1900
Trang thông tin tổng hợp
  • HOME
  • Số Hóa
  • Ẩm Thực & Thưởng Thức
  • Đời Sống & Văn Hóa
  • Điểm Đến
  • EVA
  • Tử Vi
  • Ảnh++
  • XE++
HOME Số Hóa Ẩm Thực & Thưởng Thức Đời Sống & Văn Hóa Điểm Đến EVA Tử Vi Ảnh++ XE++
  • Cách tải nhạc về máy tính miễn phí đơn giản và hiệu quả
  • Hướng dẫn tải TikTok về máy tính nhanh chóng và đơn giản
  • Tải bài hát làm nhạc chuông điện thoại dễ dàng
  • Tải video CapCut không logo bằng link nhanh chóng và đơn giản
  • Tải Tik Tok miễn phí và khám phá thế giới video ngắn
  • Hướng Dẫn Ch Play Tải Ứng Dụng Trên Android Đơn Giản
Thứ 6, ngày 16 tháng 8, 2019, 8:36:21 Chiều
  1. Trang chủ
  2. Đời Sống

DỰ ÁN 319 UY NỖ ĐÔNG ANH HÀ NỘI

avatar
Heo Đất
23:35 18/11/2024
Trong bối cảnh đô thị hóa nhanh chóng như hiện nay, nhu cầu về nhà ở chất lượng cao ngày càng gia tăng. Dự án 319 Uy Nỗ Đông Anh là một trong những dự án nổi bật, mang đến không gian sống lý tưởng cho cư dân. Hãy cùng khám phá những thông tin chi tiết về dự án này trong bài viết dưới đây. DỰ ÁN 319 UY NỖ ĐÔNG ANH HÀ NỘI

Giới Thiệu Chung Về Dự Án 319 Đông Anh

DỰ ÁN 319 UY NỖ ĐÔNG ANH HÀ NỘI

Tình Trạng Dự Án

Dự án 319 Uy Nỗ Đông Anh hiện đang trong giai đoạn hoàn thiện mặt ngoài tất cả các căn. Theo cập nhật mới nhất vào ngày 15/2/2022, chủ đầu tư đã chuẩn bị cho việc xây dựng các tòa chung cư, khẳng định cam kết mang đến một không gian sống hiện đại và tiện nghi. DỰ ÁN 319 UY NỖ ĐÔNG ANH HÀ NỘI

Thông Tin Cơ Bản

  • Tên Dự Án: Khu Nhà Ở Uy Nỗ
  • Chủ Đầu Tư: Tổng Công Ty 319 Bộ Quốc Phòng
  • Vị Trí: Khu Tên Lửa, Đường Cổ Loa, Xã Uy Nỗ, Đông Anh, Hà Nội
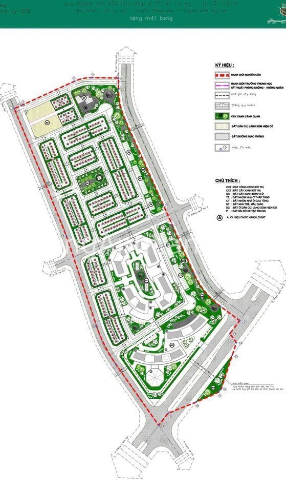
  • Diện Tích Quy Hoạch: 9.86 ha
  • Quy Mô Dân Số: 2042 người
Dự án được thiết kế với các hạng mục công trình đáp ứng nhu cầu sống của cư dân như vườn hoa, khu cây xanh, khu vui chơi và trung tâm thương mại. DỰ ÁN 319 UY NỖ ĐÔNG ANH HÀ NỘI

Quy Mô Dự Án

  • Nhà Liền Kề: 244 căn (shophouse) cao 5 tầng, diện tích từ 70m² đến 120m².
  • Chung Cư Xã Hội: 2 tòa chung cư cao 9 tầng với diện tích căn hộ từ 40m² đến 75m².
  • Chung Cư Thương Mại: 2 tòa chung cư cao 7 tầng với diện tích căn hộ đa dạng.
DỰ ÁN 319 UY NỖ ĐÔNG ANH HÀ NỘI

Vị Trí Địa Lý Dự Án

DỰ ÁN 319 UY NỖ ĐÔNG ANH HÀ NỘI

Đặc Điểm Vị Trí

Dự án 319 Uy Nỗ tọa lạc tại vị trí đắc địa, cách trung tâm thành phố Hà Nội chỉ 12km về phía Đông Bắc. Đây là một điểm mạnh lớn của dự án, giúp cư dân dễ dàng di chuyển đến các khu vực trung tâm và các tỉnh lân cận. DỰ ÁN 319 UY NỖ ĐÔNG ANH HÀ NỘI

Kết Nối Giao Thông Thuận Tiện

  • Tuyến Đường Nhật Tân - Nội Bài: Hoàn thành vào cuối năm 2014, giúp rút ngắn quãng đường từ dự án vào trung tâm thành phố chỉ còn khoảng 7km, mất khoảng 10 phút di chuyển bằng ô tô.
  • Hệ Thống Giao Thông: Kết nối tốt với các tuyến đường chính, tạo điều kiện thuận lợi cho việc di chuyển.
DỰ ÁN 319 UY NỖ ĐÔNG ANH HÀ NỘI

Tiện Ích Dự Án

DỰ ÁN 319 UY NỖ ĐÔNG ANH HÀ NỘI

Các Tiện Ích Căn Bản

Dự án 319 Uy Nỗ không chỉ chú trọng đến không gian sống mà còn đầu tư mạnh mẽ vào các tiện ích phục vụ đời sống cư dân, bao gồm:
  • Khu Vui Chơi: Nơi trẻ em có thể thoải mái vui chơi, rèn luyện sức khỏe.
  • Vườn Hoa và Khu Cây Xanh: Mang đến không gian xanh trong lành, tạo cảm giác gần gũi với thiên nhiên.
  • Trung Tâm Thương Mại: Đáp ứng nhu cầu mua sắm, giải trí của cư dân trong khu vực.
DỰ ÁN 319 UY NỖ ĐÔNG ANH HÀ NỘI

Môi Trường Sống Lý Tưởng

Dự án được thiết kế với không gian sống hài hòa, gần gũi với thiên nhiên. Các mảng xanh được bố trí hợp lý, mang lại cảm giác bình yên và dễ chịu cho cư dân. Đây là một trong những lý do khiến dự án trở thành lựa chọn lý tưởng cho những ai đang tìm kiếm một nơi an cư lập nghiệp. DỰ ÁN 319 UY NỖ ĐÔNG ANH HÀ NỘI

Lợi Ích Khi Đầu Tư Vào Dự Án 319 Đông Anh

DỰ ÁN 319 UY NỖ ĐÔNG ANH HÀ NỘI

Tăng Trưởng Giá Trị Bất Động Sản

Với sự phát triển nhanh chóng của hạ tầng giao thông và các tiện ích xung quanh, giá trị bất động sản tại khu vực Đông Anh đã tăng cao và dự báo sẽ tiếp tục tăng trong tương lai. Đầu tư vào dự án 319 Uy Nỗ không chỉ mang đến một nơi ở lý tưởng mà còn là cơ hội sinh lời hấp dẫn. DỰ ÁN 319 UY NỖ ĐÔNG ANH HÀ NỘI

Tiềm Năng Kinh Doanh

Dự án có các căn shophouse, mang đến cơ hội kinh doanh cho các nhà đầu tư. Với vị trí đắc địa và lượng dân cư đông đúc, shophouse tại đây rất phù hợp cho các hoạt động kinh doanh, mở ra nhiều cơ hội phát triển.

Kết Luận

Dự án 319 Uy Nỗ Đông Anh không chỉ mang đến một không gian sống hiện đại, tiện nghi mà còn hứa hẹn sẽ là một cơ hội đầu tư hấp dẫn trong tương lai. Với các tiện ích đồng bộ, vị trí thuận lợi và môi trường sống trong lành, đây chắc chắn là một lựa chọn đáng cân nhắc cho những ai đang tìm kiếm một nơi an cư tại Hà Nội. Nếu bạn có bất kỳ câu hỏi nào hoặc cần tư vấn thêm về dự án 319 Uy Nỗ Đông Anh, hãy liên hệ với hotline phòng kinh doanh: 0904070707 để được hỗ trợ nhanh chóng và tận tình nhất. ---

Hình Ảnh Dự Án

--- Hy vọng bài viết này đã cung cấp cho bạn những thông tin hữu ích về dự án 319 Uy Nỗ Đông Anh. Hãy theo dõi chúng tôi để cập nhật những tin tức mới nhất về dự án cũng như các cơ hội đầu tư hấp dẫn khác!
0 Thích
Chia sẻ
  • Chia sẻ Facebook
  • Chia sẻ Twitter
  • Chia sẻ Zalo
  • Chia sẻ Pinterest
Đọc nhiều
Khám giá một số ưu nhược điểm xe Xpander 2024 sau khi lái 1001km
101+ avatar ảnh mèo cute, dễ thương, hài hước, cool ngầu
Cánh gà nướng hoàn hảo với nồi chiên không dầu
Phương hướng Đông Tây Nam Bắc trong tiếng Anh 
Lạ kỳ với những phiên bản cosplay nhân vật nữ từ anime, manga giống hệt như bản gốc!
 Bài viết liên quan
Khám Phá Tổ Hợp Giải Trí Complex 01 Đời Sống
Khám Phá Tổ Hợp Giải Trí Complex 01

Khám Phá Tổ Hợp Giải Trí Độc Đáo Tại Hà Nội Giới Thiệu Về Tổ Hợp Giải Trí Trong nhịp sống hiện...

Con chuột đánh số gì trong giấc mơ của bạn Đời Sống
Con chuột đánh số gì trong giấc mơ của bạn

Giấc Mơ và Ý Nghĩa Từ Những Sinh Vật Nhỏ Bé Giấc mơ là một phần hấp dẫn và bí ẩn...

Đời Sống

Giới thiệu về cá lóc và ý nghĩa của nó trong cuộc sống Cá lóc, hay còn gọi là cá quả,...

Đời Sống

Giấc Mơ Về Những Sinh Vật Nước Giấc mơ là một phần không thể thiếu trong trải nghiệm con người. Trong...

Đời Sống

Những Giấc Mơ Liên Quan Đến Chuột và Ý Nghĩa Của Chúng Trong cuộc sống hàng ngày, giấc mơ thường phản...

Con cá số gì và ý nghĩa giấc mơ thấy cá Đời Sống
Con cá số gì và ý nghĩa giấc mơ thấy cá

Giấc Mơ Thấy Cá - Ý Nghĩa và Con Số May Mắn Giấc mơ là một trong những điều huyền bí...

Con chó số 11 và biểu tượng của sự trung thành Đời Sống
Con chó số 11 và biểu tượng của sự trung thành

Nguồn Gốc và Ý Nghĩa Của Chó Trong Cuộc Sống Chó từ lâu đã được xem là "bạn đồng hành" trung...

Đời Sống

Giới thiệu Trong thế giới tự nhiên, có nhiều loài động vật được xem như biểu tượng cho những phẩm chất...

Đời Sống

Thời điểm đặc biệt trong năm Khi năm cũ sắp khép lại và năm mới đang đến gần, không khí tưng...

Đời Sống

Giới thiệu về nền tảng theo dõi tiền điện tử Trong thế giới ngày càng phát triển của công nghệ tài...

Tin mới
Cách tải nhạc về máy tính miễn phí đơn giản và hiệu quả

Cách tải nhạc về máy tính miễn phí đơn giản và hiệu quả

Tìm hiểu cách tải nhạc miễn phí về máy tính Âm nhạc là một phần không thể thiếu trong cuộc sống hàng ngày của chúng ta. Nghe nhạc không chỉ giúp thư giãn mà còn là một cách tuyệt vời để...

13:15 04/04/2025 Số Hóa

Hướng dẫn tải TikTok về máy tính nhanh chóng và đơn giản

Hướng dẫn tải TikTok về máy tính nhanh chóng và đơn giản

Giới thiệu về ứng dụng chia sẻ video hot nhất hiện nay Trong thời đại công nghệ số hiện đại, ứng dụng chia sẻ video đang trở nên phổ biến hơn bao giờ hết. Một trong những ứng dụng nổi bật...

13:00 04/04/2025 Số Hóa

Tải bài hát làm nhạc chuông điện thoại dễ dàng

Tải bài hát làm nhạc chuông điện thoại dễ dàng

Giới thiệu về nhạc chuông điện thoại Trong thời đại công nghệ hiện nay, điện thoại di động đã trở thành một phần không thể thiếu trong cuộc sống hàng ngày của chúng ta. Bên cạnh việc sử dụng điện thoại...

12:45 04/04/2025 Số Hóa

Tải video CapCut không logo bằng link nhanh chóng và đơn giản

Tải video CapCut không logo bằng link nhanh chóng và đơn giản

Giới thiệu về ứng dụng chỉnh sửa video phổ biến Trong thời đại số, việc tạo ra những video chất lượng cao để chia sẻ trên các nền tảng mạng xã hội đang trở thành một xu hướng ngày càng phổ...

12:30 04/04/2025 Số Hóa

Tải Tik Tok miễn phí và khám phá thế giới video ngắn

Tải Tik Tok miễn phí và khám phá thế giới video ngắn

Giới thiệu về ứng dụng video ngắn phổ biến Trong thế giới công nghệ hiện đại, việc chia sẻ và tiêu thụ nội dung video trở nên dễ dàng hơn bao giờ hết. Một trong những ứng dụng nổi bật nhất...

12:15 04/04/2025 Số Hóa

Hướng Dẫn Ch Play Tải Ứng Dụng Trên Android Đơn Giản

Hướng Dẫn Ch Play Tải Ứng Dụng Trên Android Đơn Giản

Giới thiệu về Cửa Hàng Ứng Dụng trên Android Trong thời đại công nghệ hiện nay, việc sử dụng các thiết bị di động như điện thoại thông minh và máy tính bảng đã trở thành một phần không thể thiếu...

12:00 04/04/2025 Số Hóa

Tải game GTA 5: Khám phá thế giới mở đầy thú vị

Tải game GTA 5: Khám phá thế giới mở đầy thú vị

Giới thiệu về trò chơi không thể bỏ qua Trong thế giới game hiện đại, có một trò chơi đã trở thành biểu tượng văn hóa không chỉ ở Mỹ mà còn toàn cầu. Đó là một cuộc phiêu lưu hoành...

11:45 04/04/2025 Số Hóa

Hướng dẫn tải lightroom cho người mới bắt đầu

Hướng dẫn tải lightroom cho người mới bắt đầu

Khám Phá Thế Giới Chỉnh Sửa Ảnh Chuyên Nghiệp Trong kỷ nguyên số hiện nay, việc chỉnh sửa ảnh không chỉ dành riêng cho các nhiếp ảnh gia chuyên nghiệp mà còn trở thành một phần thiết yếu trong cuộc sống...

11:30 04/04/2025 Số Hóa

Hướng dẫn tải messenger cho máy tính dễ dàng và nhanh chóng

Hướng dẫn tải messenger cho máy tính dễ dàng và nhanh chóng

Giới thiệu về ứng dụng nhắn tin phổ biến Trong thời đại công nghệ số ngày nay, việc giao tiếp qua mạng xã hội đã trở thành một phần không thể thiếu trong cuộc sống hàng ngày. Trong số đó, một...

11:15 04/04/2025 Số Hóa

Tải Facebook về máy để kết nối bạn bè dễ dàng

Tải Facebook về máy để kết nối bạn bè dễ dàng

Giới thiệu về ứng dụng mạng xã hội nổi tiếng Trong xã hội hiện đại ngày nay, việc kết nối với bạn bè và gia đình trở nên dễ dàng hơn bao giờ hết nhờ vào sự phát triển của công...

11:00 04/04/2025 Số Hóa

Bóng đá Saba là gì? Tìm hiểu về trò chơi thể thao thú vị này

  • Điều khoản sử dụng
  • Chính sách bảo mật
  • Cookies
  • RSS
  • Giới thiệu
  • Điều khoản sử dụng
  • Chính sách bảo mật
  • RSS

© 2025 - khoisunhahang.edu.vn
Liên Kết Hữu Ích :

Trang thông tin tổng hợp
  • Trang chủ
  • HOME
  • Số Hóa
  • Ẩm Thực & Thưởng Thức
  • Đời Sống & Văn Hóa
  • Điểm Đến
  • EVA
  • Tử Vi
  • Ảnh++
  • XE++
Đăng ký / Đăng nhập
Quên mật khẩu?
Chưa có tài khoản? Đăng ký